SAP2000
es el sinónimo de “Estado del Arte” en el campo del análisis de estructuras desde sus inicios.
 
Hoy en día, el SAP2000 cuenta con un resolvedor de ecuaciones sin igual capaz de realizar análisis de Ritz y Eigen values en paralelo. 

Adicionalmente, dentro de su interfaz se incluyen las opciones para realizar análisis, diseño y reportería relacionada de manera intuitiva.

El SAP2000 permite utilizar distintos códigos de diseño para marcos de acero, marcos de concreto, acero rolado en frío y aluminio estructural.
Demo Cotíceme

ETABS es el estándar de la industria para el análisis y diseño de estructuras tipo edificio siendo un paquete que integra todas las etapas del análisis y diseño estructural.

ETABS ofrece una interfaz única que permite modelar, analizar, diseñar y generar reportes sin imponer un límite en el número de ventanas, visualizaciones o datos que se pueden mostrar al usuario.

ETABS está diseñado sobre la premisa de BIM y más puntualmente, sobre la interoperabilidad BIM, por lo que es compatible con formatos internacionalmente reconocidos como lo es el IFC.
Demo Cotíceme

SAFE es uno de los programas más avanzados en su área, que sería el análisis y diseño de entrepisos y fundaciones, pasando desde el análisis hasta el detallado en planos casi listos para producción

El SAFE es ideal para diseñar las fundaciones con soportes y elementos como suelo de cero tensión, lo que nos permite analizar área de contacto de la placa basado en el módulo sub-base

Permite incorporar las singularidades que generan elementos conectados a las losas tales como columnas, muros, pedestales, vigas, etc.
Demo Cotíceme
CSiCol

CSICol es el programa ideal para el análisis y diseño de columnas de concreto o de sección compuesta. 

Incluye el “Wizard” que ayuda al usuario con la creación del modelo y sus distintos componentes.

Permite importar los elementos cargados y modelados desde ETABS con todas sus características
Demo Cotíceme

CSiBridge es un programa que integra el análisis y diseño de todas las partes de un puente creando la herramienta ideal para este trabajo.

Incluye el modelador paramétrico de puentes que ayuda al usuario con la creación del modelo y sus distintos componentes y permite utilizar distintos tipos de cargas como cargas móviles y de camión estándar según diversos códigos internacionales como lo es el AASHTO.
Demo Cotíceme

Perform 3D es un programa de análisis y diseño No-Lineal enfocado específicamente en diseño por desempeño y diseño basado en desplazamientos para edificios.

Incluye el modelado de distintos componentes como aisladores sísmicos, arriostres, muros de cortante, rótulas en elementos, etc.

Igualmente, provee las herramientas necesarias para generar diseños basados en desempeño incluyendo modelados de tipo push-over no lineal y análisis dinámico de sismos.
Demo Cotíceme

 

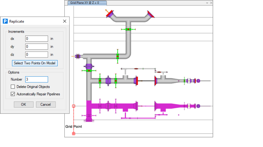
CSiPlant es un software de ingeniería integrado para el análisis y diseño de sistemas de tuberías y estructuras de marcos.

 

Hoy en día, el CSiPlant incluye verificaciones de cumplimiento del código de tuberías con factores de intensificación del esfuerzo y de flexibilidad que se calculan y aplican automáticamente.

 

CSiPlant incluye secuencias no lineales de carga y análisis, análisis P-Delta y pandeo de estructuras entre otros.

 

Además, incluye la posibilidad de integrarse con SAP2000 para realizar análisis adicionales sobre las estructuras cuenta con un resolvedor de ecuaciones sin igual capaz de realizar análisis de Ritz y Eigen values en paralelo. 

 

Adicionalmente, dentro de su interfaz se incluyen las opciones para realizar análisis, diseño y reportería relacionada de manera intuitiva

Demo Cotíceme

IDEAStatiCA

 

IDEAStatiCA es un software de diseño de conexiones en acero que permite realizar revisiones de cualquier tipo de conexión utilizando un enfoque de elementos finitos.

 

Utiliza códigos tanto Europeos como el código Estadounidense AISC, brindando al profesional una comprobación clara según el código elegido en minutos incluyendo pandeo, análisis de rigidez, resistencia y sismicidad.

 

Cuenta con una extensa base de datos de conexiones 2D/3D prediseñadas y la posibilidad de modelar rápidamente modificaciones a esas conexiones o incluso modelar la conexión desde el principio.

 

Permite obtener desde SAP2000 o ETABS las conexiones resultantes de un modelo e importar directamente las cargas y combinaciones de tal forma que se simplifica la entrada de datos para el usuario.

 

Cuenta con un motor de informes totalmente personalizable incluyendo ecuaciones e imágenes.

Demo Cotíceme

BricsCAD

 

BricsCAD es una potente y eficiente plataforma de CAD/BIM que trabaja sobre el formato base DWG nativo y utiliza un ambiente de trabajo altamente amigable y familiar para los usuarios CAD dentro del cual se pueden mencionar la compatibilidad entre comandos, archivos, menús, etc.

 

El BricsCAD adicionalmente incluye herramientas que facilitan el trabajo del usuario utilizando inteligencia artificial y la posibilidad de programar funciones en diversos lenguajes como LISP y VBA entre otros.

 

Además, ofrece la capacidad de realizar modelado en 3D mediante modelado directo, Modelado digital de terreno (topografía), alineamientos horizontales y verticales de calles, procesado de nubes de puntos de escaneo, renderizado y animación, bloques paramétricos y otras herramientas de productividad asociadas al motor de inteligencia artificial que benefician al usuario en su desempeño.

 

El BricsCAD, en su versión BIM es distinto en la manera de pensar que otros sistemas de modelado BIM ya que busca que el usuario no tenga que reaprender una nueva herramienta, sino que construye sobre los conocimientos del usuario y agrega una cantidad pequeña de conocimiento adicional requerido con un gran valor agregado para el cliente

 

Todos los productos de Bricsys cuentan con la posibilidad de licenciamiento tipo suscripción, aunque la recomendación por temas de costos en el mediano plazo es optar por las licencias tipo perpetua y sus mantenimientos anuales.

(Link de descarga de demo FTP o https://www.bricsys.com/download.do?ref=385)

 

Demo Cotíceme

Servicios Adicionales

 

Consultoría en Modelado Estructural

SEGURO Y CONFIDENCIAL

 

Asistencia en modelado estructural en los programas de CSI SAP2000, ETABS, SAFE, CSI Col y CSI Bridge.  De la misma manera, se brinda el servicio de revisión del modelos y solución de problemas con los mismos de tal forma que el profesional tenga certeza de lo que está modelando.

 

Consultoría en Dibujo de planos

Debido a la demanda que existe de dibujo de planos en 2D en el país, AISASOFT brinda el servicio de dibujo de planos en 2D para sus proyectos de ingeniería y arquitectura o incluso proyectos personales.

 

Sobrevuelos con Drone

Sobre vuelo de proyectos en distintas etapas del proyecto.  Se brinda el servicio de fotografía con drone para inspecciones, entregas de proyecto, etc.

 

Se brinda también el servicio de valoración estructural en conjunto con el sobrevuelo.

Cotíceme

No hay desafío grande cuando se trabaja con la herramienta correcta.


AISAsoft tiene la herramienta adecuada a cada reto.

Términos-Condiciones